Modernização de infraestrutura e desenvolvimento humano em ambientes de inovação: uma análise socioespacial do Parque Científico e Tecnológico Augusto Severo PAX | RN - Volumen 13 Número 2 - Página —-


REVISTA INCLUSIONES – REVISTA DE HUMANIDADES Y CIENCIAS SOCIALES

ISSN 0719-4706
Volumen 13 Número 2
Abril - Junio 2026
e3762
https://doi.org/10.58210/rie3762


Modernização de infraestrutura e desenvolvimento humano em ambientes de inovação: uma análise socioespacial do Parque Científico e Tecnológico Augusto Severo PAX | RN
/
Infrastructure Modernization and Human Development in Innovation Environments: A Sociospatial Analysis of the Augusto Severo Scientific and Technological Park PAX | RN
/
Modernización de infraestructura y desarrollo humano en ambientes de innovación: un análisis socioespacial del Parque Científico y Tecnológico Augusto Severo PAX | RN


Eng. Ádylla Luanny Apolinário da Silva
Parque Científico e Tecnológico Augusto Severo, Brasil
luanny_17@hotmail.com
https://orcid.org/0009-0009-6668-9297 

Dra. Synara Lucien de Lima Cavalcanti
Universidade Federal do Rio Grande do Norte, Brasil
synara@paxrn.com.br

https://orcid.org/0009-0004-1904-0835

 

Dr. Houtran Lima da Silva
Christian Business School, France

Logos University International, France

houtranlsilva@gmail.com
https://orcid.org/0000-0003-1172-4525

 

M.Sc. Francisco Belarmino de Macedo Neto

Universidade Federal do Rio Grande do Norte, Brasil

belarmino@paxrn.com.br

https://orcid.org/0009-0008-3424-1108

Fecha de Recepción: 19 de febrero de 2026
Fecha de Aceptación: 20 de marzo de 2026
Fecha de Publicación: 6 de abril de 2026

Financiamiento:

O presente trabalho foi realizado com apoio da Fundação de Amparo e Promoção da Ciência, Tecnologia e Inovação do Rio Grande do Norte (FAPERN), através da concessão de bolsa de desenvolvimento científico e tecnológico vinculada ao Edital n° 02/2025.

Conflictos de interés:

El autor también declara no tener ningún conflicto de intereses.

Correspondencia:

Nombres y Apellidos: Eng. Ádylla Luanny Apolinário da Silva
Correo electrónico: luanny_17@hotmail.com

Dirección postal: Av. Santos Dumont, Nº 1.560 - Zona Rural, Macaíba - RN, 59280-000, Brasil


Los autores retienen los derechos de autor de este artículo. Revista Inclusiones publica esta obra bajo una licencia Creative Commons Atribución 4.0 Internacional (CC BY 4.0), que permite su uso, distribución y reproducción en cualquier medio, siempre que se cite apropiadamente a los autores originales.

https://creativecommons.org/licenses/by/4.0/

Resumo
A dinâmica de inovação tecnológica demanda, intrinsecamente, a reestruturação dos espaços que a abrigam. Este artigo apresenta um estudo de caso sobre a modernização da gestão de infraestrutura do Parque Científico e Tecnológico Augusto Severo PAX | RN, analisando o impacto dessas transformações socioespaciais nas relações de trabalho, inclusão e fomento ao empreendedorismo. Sob o prisma das Ciências Sociais Aplicadas, o objetivo do estudo transcendeu a otimização técnica via Computer Aided Design (CAD), buscando compreender como a readequação normativa — ancorada na Lei Brasileira de Inclusão e na NBR 9050 — atua como vetor de justiça social. Metodologicamente, adotou-se uma abordagem aplicada e mista, focada na conversão de intervenções espaciais em indicadores de bem-estar e acessibilidade. À luz da teoria de Milton sobre sistemas de objetos e ações, os resultados demonstram que a padronização e o redesenho de ecossistemas (como a subdivisão de espaços para startups) não apenas elevam a eficiência gerencial, mas combatem a fuga de cérebros, retendo talentos locais e alinhando a gestão pública norte-rio-grandense aos Objetivos de Desenvolvimento Sustentável[1] (ODS 8, 9 e 11) da Agenda 2030.

Palavras-chave:  Acessibilidade; Agenda 2030; Gestão Pública; Inovação Inclusiva; Sociologia do Espaço.

Abstract
The dynamics of technological innovation intrinsically demand the restructuring of the spaces that house it. This article presents a case study on the modernization of infrastructure management at the Augusto Severo Scientific and Technological Park PAX | RN, analyzing the impact of these socio-spatial transformations on labor relations, inclusion, and entrepreneurship promotion. From the perspective of Applied Social Sciences, the study's objective transcended technical optimization through Computer Aided Design (CAD), seeking to understand how normative readjustment — anchored in the Brazilian Law of Inclusion and NBR 9050 — functions as a vector of social justice. Methodologically, an applied and mixed approach was adopted, focused on converting spatial interventions into well-being and accessibility indicators. In light of Milton's theory of systems of objects and actions, the results demonstrate that the standardization and redesign of ecosystems (such as the subdivision of spaces for startups) not only enhance managerial efficiency, but also combat brain drain by retaining local talent and aligning North Rio Grande public management with the Sustainable Development Goals (SDGs 8, 9, and 11) of the 2030 Agenda.

Keywords: Accessibility; 2030 Agenda; Public Management; Inclusive Innovation; Sociology of Space.


Resumen
La dinámica de innovación tecnológica exige, intrínsecamente, la reestructuración de los espacios que la albergan. Este artículo presenta un estudio de caso sobre la modernización de la gestión de infraestructura del Parque Científico y Tecnológico Augusto Severo PAX | RN, analizando el impacto de estas transformaciones socioespaciales en las relaciones laborales, la inclusión y el fomento al emprendimiento. Desde la perspectiva de las Ciencias Sociales Aplicadas, el objetivo del estudio trascendió la optimización técnica mediante el Diseño Asistido por Computadora (CAD), buscando comprender cómo la readecuación normativa — anclada en la Ley Brasileña de Inclusión y en la NBR 9050 — actúa como vector de justicia social. Metodológicamente, se adoptó un enfoque aplicado y mixto, centrado en la conversión de intervenciones espaciales en indicadores de bienestar y accesibilidad. A la luz de la teoría de Milton sobre sistemas de objetos y acciones, los resultados demuestran que la estandarización y el rediseño de ecosistemas (como la subdivisión de espacios para startups) no solo elevan la eficiencia gerencial, sino que también combaten la fuga de talentos, reteniendo capital humano local y alineando la gestión pública norte-riograndense con los Objetivos de Desarrollo Sostenible (ODS 8, 9 y 11) de la Agenda 2030.

Palabras clave: Accesibilidad; Agenda 2030; Gestión Pública; Innovación Inclusiva; Sociología del Espacio.

Introdução
A infraestrutura moderna, notadamente em ecossistemas dedicados à ciência e inovação, não se resume a um mero aglomerado de concreto, cabeamentos e estações de trabalho. No limiar do século XXI, a concepção arquitetônica e gerencial dos parques tecnológicos atua como uma força modeladora das relações humanas. Nesse contexto, o Parque Científico e Tecnológico Augusto Severo (PAX | RN) transcende a sua função utilitária de abrigo para empresas de base tecnológica; ele erige-se como um motor de desenvolvimento regional e de cidadania no estado do Rio Grande do Norte.

O presente estudo de caso investiga o processo de modernização da gestão de infraestrutura do PAX | RN, ocorrido entre o final de 2025 e o início de 2026. Diferentemente das abordagens estritamente cartesianas da engenharia, esta análise propõe um olhar orientado pelas Humanidades e Ciências Sociais. A adoção de tecnologias avançadas, como o Computer Aided Design (CAD), e a observância aos marcos regulatórios de acessibilidade não são tratados aqui como meras obrigações contratuais, mas como políticas públicas materializadas no espaço.

Ao ressignificarmos o uso do espaço físico, buscamos responder a uma questão central: de que maneira a modernização técnica da infraestrutura afeta as dinâmicas de interação social, o bem-estar dos pesquisadores e a democratização do acesso à inovação? Com efeito, tal investigação alinha-se intrinsecamente à Agenda 2030 da ONU, particularmente no que tange ao fomento do trabalho decente e do crescimento econômico (ODS 8), à construção de infraestruturas resilientes (ODS 9) e à garantia de espaços comunitários inclusivos (ODS 11).[2]

  1. Fundamentação Teórica e Legal

A viabilidade de ambientes de inovação depende diretamente de uma infraestrutura física moderna aliada a uma governança eficiente. A fundamentação deste estudo entrelaça a eficiência gerencial, a sustentabilidade construtiva e o rigoroso cumprimento dos marcos legais brasileiros.

1.1 O Espaço como Sistema de Objetos e Ações

Para compreender o impacto da modernização física em um parque tecnológico, é imperativo distanciar-se da visão que concebe o espaço como um palco inerte. Apoiando-nos na consagrada formulação do geógrafo Milton Santos, apreendemos o espaço geográfico como um conjunto indissociável, solidário e contraditório de "sistemas de objetos" e "sistemas de ações".

Sob essa ótica, as paredes, os corredores, as salas de reunião e as redes de dados do PAX | RN constituem o sistema de objetos. Eles não possuem significado por si sós; seu valor emerge quando condicionados — e quando condicionam — o sistema de ações, ou seja, as dinâmicas humanas de networking, pesquisa, colaboração e bem-estar. Alterar o layout de uma sala via CAD não é, portanto, um ato neutro de engenharia; é uma intervenção sociológica. Um projeto arquitetônico restritivo gera ações excludentes, enquanto um design fluído e integrado fomenta o capital social e o avanço científico.

1.2 Gestão e Eficiência em Ambientes de Inovação

Embora a gestão contemporânea seja ampla, a análise de Matias-Pereira reforça que a substituição de processos burocráticos rígidos por uma gestão gerencial orientada a resultados, eficiência e transparência é fundamental. [3] No contexto do PAX | RN, a agilidade administrativa não é apenas um diferencial, mas uma condição vital para acompanhar a velocidade da economia digital.

Santos destaca que "o espaço é formado por um conjunto indissociável, solidário e também contraditório, de sistemas de objetos [4] e sistemas de ações". [5] Assim, a modernização proposta não é apenas técnica, mas espacial e social. A adoção de ferramentas digitais, como o CAD, permite um controle técnico superior, essencial para a análise do ciclo de vida das edificações, conforme apontam Santos et al. [6] Checcucci complementa essa visão, observando que a digitalização moderniza o acervo técnico e gera dados precisos para a gestão de ativos.[7]

A infraestrutura deve integrar princípios ecológicos desde a concepção. Kibert defende que edifícios preparados para o futuro precisam integrar eficiência de recursos e princípios ecológicos. [8] O uso de tecnologia serve para mitigar impactos ambientais e racionalizar custos operacionais. Veuger argumenta que "a confiança em uma economia imobiliária viável com disrupção e blockchain" é crucial [9], enquanto James afirma que a sustentabilidade urbana envolve círculos que abrangem aspectos econômicos, ecológicos, políticos e culturais.[10]

1.3 Acessibilidade e Marcos Legais como Ferramentas de Cidadania

A modernização gerencial proposta não prescinde da efetivação de direitos fundamentais. A Lei Brasileira de Inclusão da Pessoa com Deficiência (Estatuto da Pessoa com Deficiência - Lei nº 13.146/2015) e a Norma Brasileira ABNT NBR 9050 são frequentemente interpretadas na literatura técnica apenas como passivos normativos a serem superados para a obtenção de alvarás. Neste estudo, contudo, elevamos esses diplomas legais ao status de instrumentos de justiça social.

A LBI[11] estabelece que é dever do Estado e da sociedade assegurar, em condições de igualdade, o exercício dos direitos e das liberdades fundamentais. Aplicar os preceitos da NBR 9050 nas rampas, circulações e sanitários de um ecossistema de ponta[12] como o PAX | RN significa declarar que a produção de alta tecnologia não é privilégio de corpos normativos. Trata-se de desconstruir barreiras atitudinais e arquitetônicas, permitindo que mentes brilhantes, independentemente de suas condições de mobilidade, tenham acesso às mesmas oportunidades de empreendedorismo e pesquisa.

O suporte jurídico para esta iniciativa reside no Marco Legal da Ciência, Tecnologia e Inovação (Lei nº 13.243/2016), que consolidou o conceito de "ambientes promotores da inovação".[13] Rauen argumenta que a capacidade de atrair e reter empresas de base tecnológica depende diretamente da excelência das instalações físicas oferecidas.[14]

Simultaneamente, a modernização não pode prescindir da Lei Brasileira de Inclusão (Lei nº 13.146/2015). O Estatuto da Pessoa com Deficiência impõe a acessibilidade como condicionante jurídica obrigatória. [15] Para materializar essas obrigações, a ABNT NBR 9050 atua como referência técnica mandatória. Dischinger e Bins Ely alertam que a qualidade espacial inclusiva deixou de ser um diferencial facultativo para se tornar um requisito indispensável.[16] O uso do CAD torna-se estratégico para validar, com precisão milimétrica, se o desenho atende a essas exigências, garantindo a segurança jurídica e o respeito aos direitos fundamentais.

  1. Objetivos

O desenvolvimento deste estudo de caso guiou-se por diretrizes claras de modernização e adequação normativa, estruturadas em um objetivo geral e desdobramentos específicos que orientaram as intervenções no PAX | RN.

2.1 Objetivo Geral

O objetivo geral deste estudo de caso é analisar o processo de modernização da gestão de infraestrutura do Parque Científico e Tecnológico Augusto Severo PAX | RN. A pesquisa busca demonstrar como a implementação e otimização da tecnologia CAD (Computer Aided Design) e a adequação às legislações vigentes contribuíram para a estruturação de ambientes inovadores, eficientes e sustentáveis.

2.2 Objetivo Específicos

Para alcançar a finalidade proposta, foram estabelecidas as seguintes metas investigação:

  1. Descrever o diagnóstico realizado sobre as práticas de gestão de projetos e os fluxos processuais de engenharia pré-existentes no parque.
  2. Demonstrar o processo de padronização do software CAD como ferramenta oficial para a elaboração e revisão de projetos.
  3. Apresentar os protocolos instituídos para o arquivamento digital e compartilhamento seguro de projetos entre as equipes.
  4. Detalhar os procedimentos internos elaborados para a gestão de obras, evidenciando a observância às normas técnicas (ABNT) e aos códigos de obras.
  5. Avaliar as minutas padronizadas de Termos de Referência propostas, com foco na economicidade e técnica.
  6. Mensurar os resultados alcançados, verificando a melhoria na eficiência operacional e na conformidade legal dos processos implementados.

3. Metodologia

A presente pesquisa configura-se como de natureza aplicada, pois objetivou gerar conhecimentos para aplicação prática dirigidos à solução de problemas específicos — no caso, a modernização da gestão de infraestrutura do PAX | RN, conforme define Gil. [17] Quanto à abordagem, o estudo adotou o método misto proposto por Creswell, para uma compreensão mais completa do fenômeno investigado.[18] A escolha justifica-se pela natureza complexa do objeto de estudo, que exigiu tanto a interpretação qualitativa de processos, fluxos de trabalho e legislações quanto a mensuração quantitativa de parâmetros físicos (áreas, capacidades) e indicadores de desempenho KPIs).

Para a condução do estudo, estruturou-se protocolo de intervenção alinhado às boas práticas de gerenciamento descritas pelo Project Management Institute (PMI), [19] dividindo a investigação e a ação em seis fases estratégicas:

  1. Diagnóstico Situacional e Análise Documental (Qualitativa): Levantamento detalhado das práticas vigentes utilizando a técnica de análise documental de Bardin [20] para examinar fluxos de gestão, softwares e procedimentos de compras.
  2. Capacitação Técnica e Legal: Fase focada no desenvolvimento do capital humano, observando a premissa de Chiavenato [21] sobre o treinamento como meio de aprendizagem. Envolveu a instrução das equipes em CAD e legislação.
  3. Implementação Tecnológica e Processual: Instalação de ferramentas e desenvolvimento de Procedimentos Operacionais Padronizados (POPs), estabelecendo a infraestrutura digital para a coleta de dados.
  4. Padronização de Ativos Digitais (Instrumentação): Criação de interfaces digitais e templates. A elaboração de memoriais descritivos seguiu os conceitos de gestão do conhecimento de Nonaka e Takeuchi, [22] assegurando a continuidade organizacional.
  5. Estabelecimento de Protocolos de Colaboração: Definição e observação de workflows para controle de versões e compartilhamento seguro.
  6. Monitoramento e Validação de Resultados (Quantitativa/Qualitativa): Avaliação do impacto das intervenções através de indicadores de desempenho, verificando a eficácia frente aos objetivos traçados, alinhado às práticas de gestão de Kerzner.[23]

Destaque-se que, ao longo das seis fases metodológicas fundamentadas no PMI, o monitoramento dos resultados qualitativos teve como premissa não apenas a entrega de métricas estruturais, mas a observação do impacto destas intervenções na melhoria da ambiência organizacional e na viabilidade de um ecossistema humanizado.

  1. Descrição da Intervenção (Estudo de Caso)

O estudo de caso baseou-se em um protocolo rigoroso iniciado com o levantamento de dados in loco nas dependências do PAX | RN. Esta etapa de vistoria técnica permitiu compor um diagnóstico preciso, mapeando patologias construtivas, inadequações funcionais e barreiras de acessibilidade [24] sob a ótica da NBR 9050 e normas de segurança.

A análise cruzada entre os dados de campo e os relatórios documentais anteriores evidenciou a necessidade de refinamento do escopo original da pesquisa. A investigação redirecionou-se, então, para a modernização da gestão via ferramentas CAD, respondendo de maneira assertiva às demandas operacionais da Diretoria e das startups incubadas.

Na fase de produção técnica, observou-se a utilização da plataforma CAD para o desenvolvimento de soluções projetuais em setores estratégicos. As intervenções analisadas incluíram a readequação do layout da Sala da Diretoria, o projeto de ambientação do Espaço de Convivência, a infraestrutura da Sala de Rack (TI), o estudo de viabilidade para parcelamento da Sala 32 e o estudo de capacidade do Restaurante.

Para cada intervenção, foi verificada a elaboração do respectivo Memorial Descritivo. O estudo constatou que esses documentos atuaram como guias executivos, padronizando métodos construtivos e subsidiando processos de aprovação legal, essenciais para a cultura de planejamento técnico no parque.

  1. Resultados e Discussão

Os dados obtidos no período de estudo demonstram que as intervenções impactaram diretamente a qualificação do espaço físico do PAX | RN. A aplicação das ferramentas e normas resultou em melhorias tangíveis em acessibilidade, segurança e eficiência operacional.

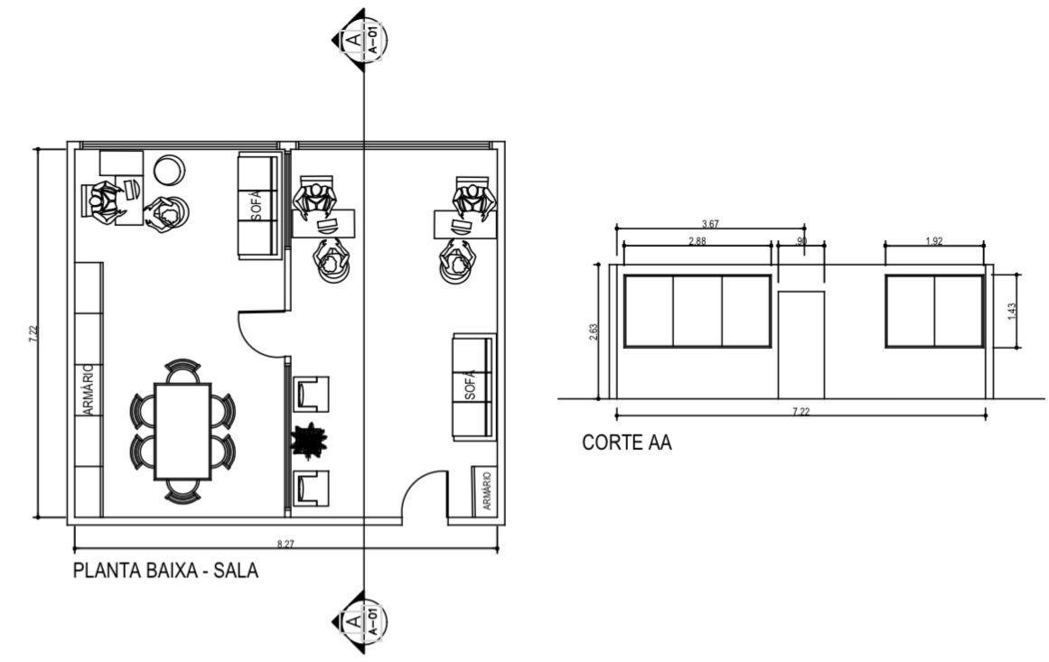
5.1 Reconfiguração de Espaços: A Sala da Diretoria

A utilização de plataformas digitais para a readequação da Sala da Diretoria e do Espaço de Convivência (Café) ilustra a aplicação prática da teoria santiana[25]. Ao reorganizar a Diretoria para equilibrar ergonomia e representatividade, criou-se um ambiente que democratiza o fluxo de tomada de decisões e acolhe parceiros de governança de forma mais transparente.

diretoria

Figura 1: Planta Baixa e Corte da Sala da Diretoria, mostrando a disposição das mesas de trabalho, área de reunião e armários. Fonte: Elaborado pelos autores, 2025.

5.2 Espaço de Convivência e Networking

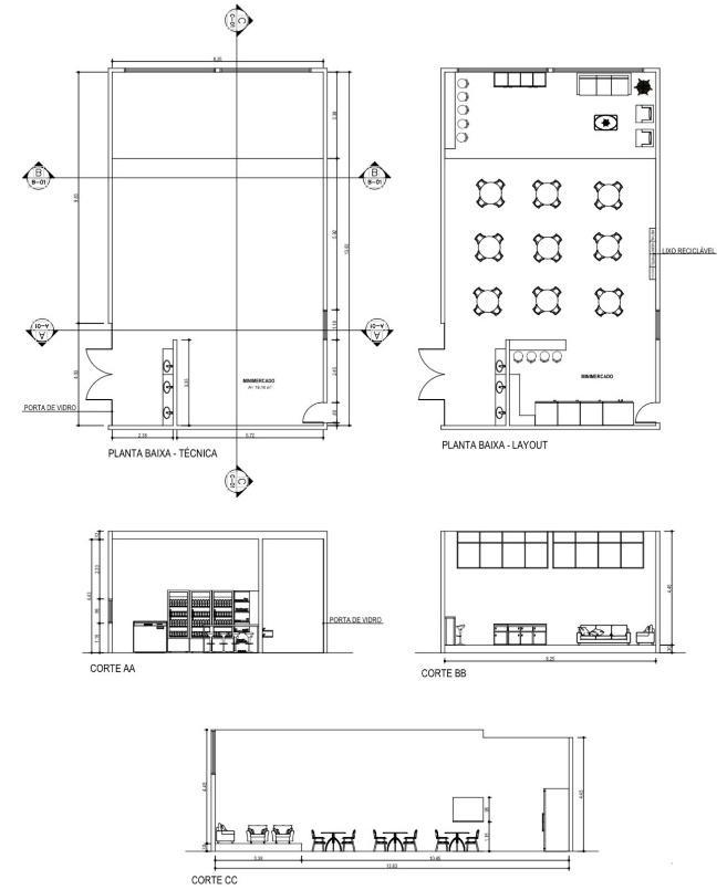
Por seu turno, a revitalização da área do Café e minimercado autônomo foi pensada como um laboratório social espontâneo. A valorização da iluminação natural e o layout do mobiliário não visavam apenas o conforto térmico, mas a indução da serendipidade — encontros casuais entre pesquisadores seniores e jovens empreendedores. Em sociologia das organizações, sabe-se que a inovação disruptiva raramente ocorre em baias isoladas; ela eclode nesses espaços híbridos de socialização.

cafe

Figura 2: Planta Baixa, Técnica e Cortes do Espaço de Convivência, destacando a área de mesas e o minimercado. Fonte: Elaborado pelos autores, 2025.

5.3 Segurança de Dados e Infraestrutura de TI

Por fim, o estudo da capacidade de ocupação do restaurante e a reorganização da Sala de Rack (TI) evidenciam a gestão do cuidado. O dimensionamento rigoroso das rotas de fuga vai além do cumprimento punitivo de normas do Corpo de Bombeiros; reflete o compromisso bioético da instituição com a preservação da vida. Analogamente, proteger os servidores de dados na Sala de TI garante a integridade da propriedade intelectual dos pesquisadores, oferecendo a segurança institucional necessária para que a pesquisa aplicada floresça.

rack

Figura 3: Planta baixa e corte do detalhamento técnico da Sala do Rack, 2025. Fonte: Elaborado pelos autores, 2025.

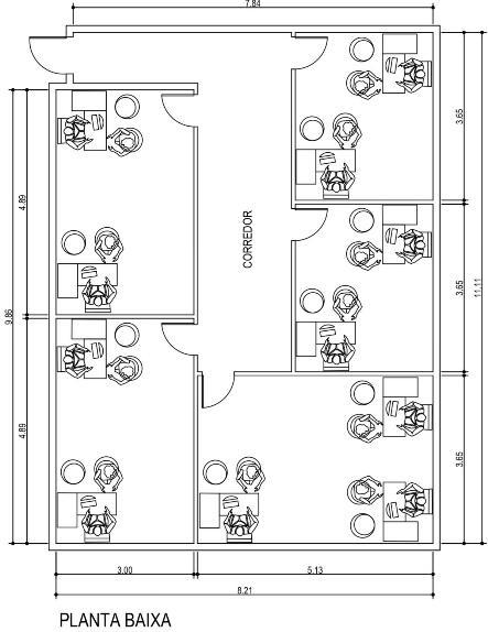
5.4 Democratização do Espaço e Empreendedorismo Local: A Sala 32

Um dos resultados mais expressivos da intervenção foi a reestruturação da Sala 32 (Bloco C), parcelada em cinco novos módulos operacionais. Em uma leitura estritamente técnica, este ato seria descrito como "maximização da ocupação métrica". Sob a ótica do desenvolvimento humano regional e do ODS 8, trata-se de um mecanismo vigoroso contra a fuga de cérebros[26].

Ao criar módulos menores e financeiramente acessíveis, o PAX | RN reduz a barreira de entrada para startups universitárias em estágio inicial. O parque atua, assim, como um equalizador de oportunidades, retendo o talento acadêmico formado nas universidades potiguares (UFRN, IFRN, outros) que, outrora, migraria para o Sudeste do país em busca de infraestrutura. A preservação dos requisitos de acessibilidade nesses micros espaços garante que esse processo de incubação inclua populações diversas, consubstanciando a Inovação e a Infraestrutura Resiliente preconizadas pelo ODS 9.[27]

.

32

Figura 4: Planta Baixa da Sala 32 subdividida em 5 módulos com corredor central, 2025. Fonte: Elaborado pelos autores, 2025.

5.5 Segurança e Gestão Imobiliária

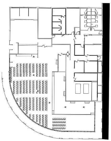
O estudo de capacidade do restaurante (Figura 5) definiu a lotação máxima respeitando corredores de circulação e rotas de fuga exigidas pelo Corpo de Bombeiros. Complementarmente, a atualização da planta baixa geral (Figura 6) com a nomeação padronizada dos Blocos e Salas facilitou a gestão imobiliária do ativo, permitindo um controle rigoroso da ocupação.restaurante

Figura 5: Layout do Restaurante com rotas de fuga, 2025. Fonte: Parque Científico e Tecnológico Augusto Severo PAX | RN, 2025, disponível em: https://paxrn.com.br. [28]

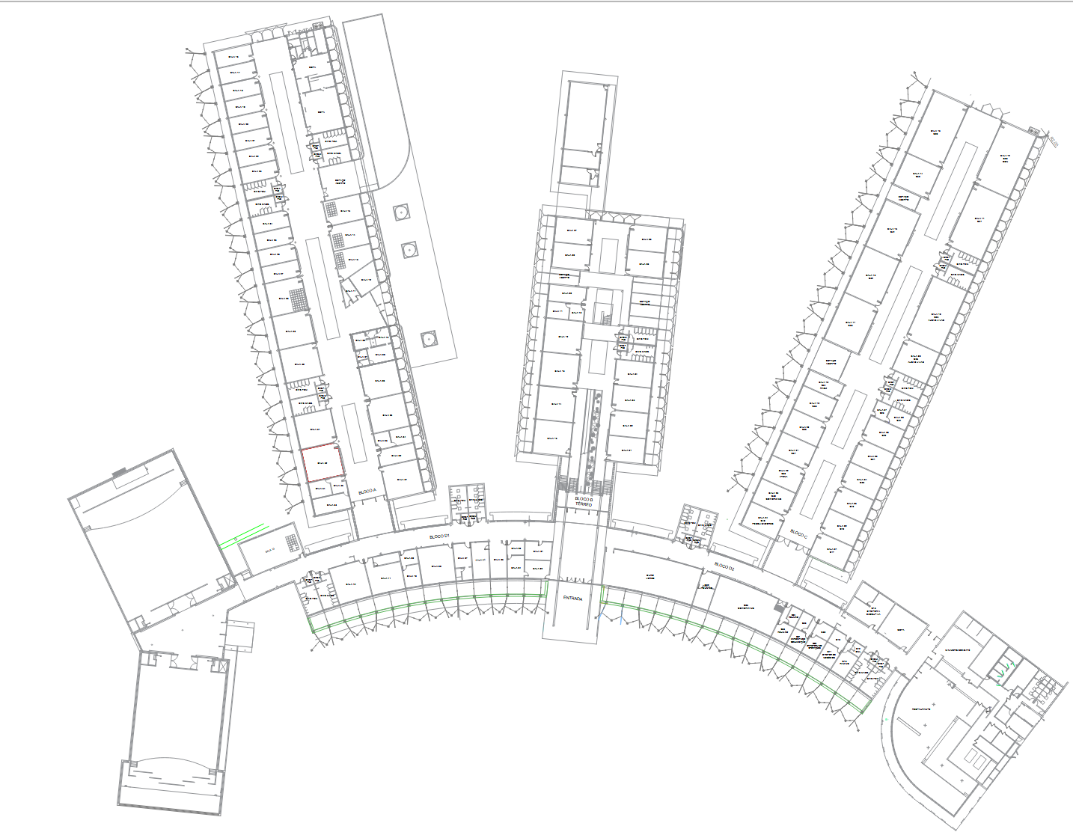
Figura 6: Planta Geral – Layout – do PAX | RN atualizada. Fonte: Parque Científico e Tecnológico Augusto Severo PAX | RN, 2026, disponível em: https://paxrn.com.br/.[29]

Considerações Finais

O presente estudo de caso evidencia que a gestão da infraestrutura em polos de inovação é, antes de tudo, uma prática de engenharia social. O projeto de modernização do Parque Científico e Tecnológico Augusto Severo PAX | RN, realizado de setembro de 2025 a fevereiro de 2026, comprovou que a aplicação de ferramentas de Computer Aided Design (CAD) ganha seu verdadeiro propósito quando subordinada ao bem-estar coletivo e à inclusão.

A inflexão metodológica deste trabalho — ao transitar da mera otimização de "metros quadrados" para a análise crítica dos impactos humanos — demonstra que os "sistemas de objetos" moldados pelas plantas arquitetônicas são determinantes vitais para os "sistemas de ações” [30]. Ao assumir a NBR 9050 e a Lei Brasileira de Inclusão não como dogmas burocráticos, mas como vetores de cidadania, o parque garante o direito fundamental à cidade e à inovação para grupos historicamente marginalizados.

Para a gestão pública do Rio Grande do Norte, os resultados indicam um caminho promissor. A readequação de espaços, notadamente a democratização do acesso para startups locais em ambientes como a Sala 32, traduz-se em uma política de fixação de capital intelectual no território nordestino. Desta forma, o PAX | RN não apenas moderniza seu ativo imobiliário, mas cumpre seu papel social, contribuindo de maneira pragmática para os Objetivos de Desenvolvimento Sustentável da Agenda 2030. A inovação tecnológica, para ser verdadeiramente disruptiva, deve começar pela empatia de seus espaços físicos.

Bibliografia

Associação Brasileira de Normas Técnicas. ABNT NBR 9050: acessibilidade a edificações, mobiliário, espaços e equipamentos urbanos. Rio de Janeiro: ABNT, 2020.

Associação Brasileira de Normas Técnicas. ABNT NBR ISO 14001:2015: sistemas de gestão ambiental: requisitos com orientações para uso. Emenda 1:2024. Rio de Janeiro: ABNT, 2024.

Bardin, Laurence. Análise de conteúdo. São Paulo: Edições 70, 2016.

Brasil. Lei nº 10.973, de 2 de dezembro de 2004. Dispõe sobre incentivos à inovação e à pesquisa científica e tecnológica no ambiente produtivo. Diário Oficial da União, Brasília, DF, 3 de dezembro de 2004.

Brasil. Lei nº 13.146, de 6 de julho de 2015. Institui a Lei Brasileira de Inclusão da Pessoa com Deficiência (Estatuto da Pessoa com Deficiência). Diário Oficial da União, Brasília, DF, 7 de julho de 2015.

Checcucci, Érica de Sousa. BIM na Administração Pública: estratégias para implantação e contratação. Curitiba: Appris, 2021.

Chiavenato, Idalberto. Gestão de pessoas: o novo papel dos recursos humanos nas organizações. 5. ed. São Paulo: Atlas, 2022.

Creswell, John W. Projeto de pesquisa: métodos qualitativo, quantitativo e misto. 3. ed. Porto Alegre: Artmed, 2010.

Dischinger, Marta, e Vera Helena M. Bins Ely. Manual de acessibilidade espacial em escolas: o direito à escola acessível. Brasília: Ministério da Educação, 2019.

Gil, Antônio Carlos. Como elaborar projetos de pesquisa. 7. ed. São Paulo: Atlas, 2022.

James, Paul. Urban sustainability in theory and practice: circles of sustainability. New York: Routledge, 2015.

Kerzner, Harold. Gestão de projetos: uma abordagem sistêmica para planejamento, programação e controle. 13. ed. São Paulo: Blucher, 2022.

Kibert, Charles J. Sustainable construction: green building design and delivery. 5. ed. Hoboken, NJ: Wiley, 2022.

Matias-Pereira, José. Manual de gestão pública contemporânea. 6. ed. São Paulo: Atlas, 2022.

Nonaka, Ikujiro, e Hirotaka Takeuchi. Gestão do conhecimento. 2. ed. Porto Alegre: Bookman, 2021.

Organização das Nações Unidas. Transformando nosso mundo: a Agenda 2030 para o desenvolvimento sustentável. Nova York: ONU, 2015.

Parque Científico e Tecnológico Augusto Severo. "Institucional". Accessed February 10, 2026. https://paxrn.com.br/.

Project Management Institute. Um guia do conhecimento em gerenciamento de projetos (Guia PMBOK). 7. ed. Newtown Square, PA: PMI, 2021.

Rauen, André Tortato, ed. Políticas de inovação pelo lado da demanda no Brasil. Brasília: Ipea, 2016.

Santos, Milton. A natureza do espaço: técnica e tempo, razão e emoção. São Paulo: Hucitec, 1996.

———. Espaço e método. 5. ed. São Paulo: Editora da Universidade de São Paulo, 2023.

Santos, Rúben, António Aguiar Costa, José D. Silvestre, e Lincy Pyl. "Integration of LCA and LCC analysis within a BIM-based environment". Automation in Construction 103 (2019): 127–149.

Souza, Maria Adélia Aparecida de. O pensamento de Milton Santos: a razão do espaço, o espaço da razão. São Paulo: Editora UNESP, 2021.

.

Las opiniones, análisis y conclusiones del autor son de su responsabilidad y no necesariamente reflejan el pensamiento de Revista Inclusiones.


[1] Organização das Nações Unidas (ONU), Transformando Nosso Mundo: A Agenda 2030 para o Desenvolvimento Sustentável (Brasil, 2015).

[2] Organização das Nações Unidas (ONU), Transformando Nosso Mundo: A Agenda 2030 para o Desenvolvimento Sustentável (Brasil, 2015), Objetivos 8, 9 e 11.

[3] José Matias-Pereira, Manual de Gestão Pública Contemporânea, 6. ed. (São Paulo: Atlas, 2022), 143-144.

[4] Milton Santos, A Natureza do Espaço: Técnica e Tempo, Razão e Emoção (São Paulo: Hucitec, 1996), 39.

[5] Milton Santos, Espaço e Método, 5. ed. (São Paulo: Editora da Universidade de São Paulo, 2023), 18-22.

[6] Rúben Santos et al., “Integration of LCA and LCC analysis within a BIM-based environment,” Automation in Construction 103 (2019): 1-2.

[7] Érica de Sousa Checcucci, BIM na Administração Pública: estratégias para implantação e contratação (Curitiba: Appris, 2021), cap. 2.

[8] Charles J. Kibert, Sustainable Construction: green building design and delivery, 5. ed. (Hoboken, NJ: Wiley, 2022), cap. 1.

[9] Jan Veuger, "Trust in a viable real estate economy with disruption and blockchain," Facilities 36, no. 1-2 (2018): 103.

[10] Paul James, Urban Sustainability in Theory and Practice: circles of sustainability (New York: Routledge, 2015), 53.

[11] Brasil, Lei nº 13.146, de 6 de julho de 2015, Institui a Lei Brasileira de Inclusão da Pessoa com Deficiência (Estatuto da Pessoa com Deficiência), Diário Oficial da União (Brasília, DF, 7 jul. 2015), artigo 1.

[12] Associação Brasileira de Normas Técnicas (ABNT). ABNT NBR 9050: Acessibilidade a Edificações, Mobiliário, Espaços e Equipamentos Urbanos. (Rio de Janeiro: ABNT, 2020), seção 4.

[13] Brasil, Lei nº 13.243, de 11 de janeiro de 2016, Marco Legal da Ciência, Tecnologia e Inovação, Diário Oficial da União (que altera a Lei nº 10.973/2004). (Brasília, DF, 11 jan. 2016), art. 3º B.

[14] André Tortato Rauen, ed., Políticas de inovação pelo lado da demanda no Brasil (Brasília: Ipea, 2016), 17-20.

[15] Brasil, Lei nº 13.146, de 6 de julho de 2015, Institui a Lei Brasileira de Inclusão da Pessoa com Deficiência (Estatuto da Pessoa com Deficiência), Diário Oficial da União (Brasília, DF, 7 jul. 2015), art. 3º, inciso I; Art. 53 e 54.

[16] Marta Dischinger e Vera Helena M. Bins Ely, Manual de acessibilidade espacial em escolas: o direito à escola acessível (Brasília: Ministério da Educação, 2019), 9.

[17] Antônio Carlos Gil, Como elaborar projetos de pesquisa, 7. ed. (São Paulo: Atlas, 2022).

[18] John W. Creswell, Projeto de pesquisa: métodos qualitativo, quantitativo e misto, 3. ed. (Porto Alegre: Artmed, 2010), 27. 

[19] Project Management Institute (PMI), Um guia do conhecimento em gerenciamento de projetos (Guia PMBOK), 7. ed. (Newtown Square: PMI, 2021), seção 2.2.

[20] Laurence Bardin, Análise de conteúdo (São Paulo: Edições 70, 2016), 45-47.

[21] Idalberto Chiavenato, Gestão de Pessoas: o novo papel dos recursos humanos nas organizações, 5. ed. (São Paulo: Atlas, 2022), 294-295.

[22] Ikujiro Nonaka e Hirotaka Takeuchi, Gestão do Conhecimento, 2. ed. (Porto Alegre: Bookman, 2021), 62-65.

[23] Harold Kerzner, Gestão de Projetos: uma abordagem sistêmica para planejamento, programação e controle, 13. ed. (São Paulo: Blucher, 2022), 5-7.

[24] Brasil, Lei nº 13.146, de 6 de julho de 2015, Institui a Lei Brasileira de Inclusão da Pessoa com Deficiência (Estatuto da Pessoa com Deficiência), Diário Oficial da União (Brasília, DF, 7 jul. 2015), art. 3º, inciso IV.

[25] Maria Adélia Aparecida de Souza, O Pensamento de Milton Santos: A Razão do Espaço, o Espaço da Razão (São Paulo: Editora UNESP, 2021), 45-47.

[26] Organização das Nações Unidas (ONU), Transformando Nosso Mundo: A Agenda 2030 para o Desenvolvimento Sustentável (Brasil, 2015), Objetivo 8.

[27] ONU, Agenda 2030, Objetivo 9.

[28] Parque Científico e Tecnológico Augusto Severo, "Institucional", accessed February 14, 2026, https://paxrn.com.br/.

[29] Parque Científico e Tecnológico Augusto Severo, "Institucional", accessed February 14, 2026, https://paxrn.com.br/.

[30] Santos, A natureza do espaço , 63.